APPARTEMENT T4 A VENDRE - ST CYR AU MONT D OR - 121.11 m2 - 659 000 €
Description
SAINT CYR AU MONT D'OR / PROXIMITE CENTRE DU VILLAGE
Situé à seulement 800 mètres (10min à pieds) du centre du village de Saint-Cyr-au-Mont-d'Or, cet appartement T4 d'exception, proposé par la Régie CARRON, s'inscrit dans une grande maison en cours de réhabilitation proposant 5 appartements familiaux. Il vous séduira par son environnement calme et verdoyant.
Caractéristiques du bien :
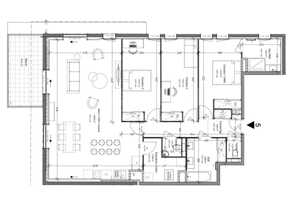
D'une superficie de 121,11 m², cet appartement lumineux bénéficie d'une double exposition Sud et Ouest. Il se compose d'un hall d'entrée avec placard, d'un vaste séjour baigné de lumière, d'une cuisine ouverte, et d'une terrasse de 10,34 m² exposée Sud et Ouest.
L'appartement comprend trois chambres avec rangements intégrés, dont une suite parentale avec salle d'eau attenante. Vous disposerez également d'une salle de bains confortable et de 2 WC indépendants.
Prestations de qualité :
- Accès sécurisé et conforme aux normes PMR
- Logement économe en énergie
- Finitions soignées et prestations de qualité
- Copropriété très récente
- espaces extérieurs : Terrasse de 10,34 m2
Option Garage :
Possibilité d'acquérir un GARAGE DOUBLE en sous-sol pour un prix de 40 000 € HAI.
Les atouts de ce bien :
- Situation centrale, proche des commerces et des écoles
- Environnement calme et verdoyant
- Luminosité optimale grâce à la double exposition
- Nombreux rangements
Copropriété : Bien soumis au régime de la copropriété, comprenant 5 lots d'habitation en cours de création.
Intéressé(e) par ce bien d'exception ?
Contacter Romain RAJON au O6 35 13 09 47 ou par mail à r.rajon@regie-carron.com
Les informations sur les risques auxquels ce bien est exposé sont disponibles sur le site Géorisques : www.georisques.gouv.fr
Les informations sur les risques auxquels ce bien est exposé sont disponibles sur le site Géorisques : www.georisques.gouv.fr
Réf : 2054
Caractéristiques
Aménagements
- construit en : 2001
- cuisine : ouverte
- chauffage : individuel pompe a chaleur
Copropriété
- soumis au statut de la copropriété : oui
- copropriété : 5 lots
- montant moyen annuel des charges courantes : 0 €/an soit 0 €/mois
- procédure en cours : non
Informations financières
- honoraires à charge : du vendeur
Imprimer la ficheVoir nos prestations et tarifs
Classe énergie et classe climat
dont émissions de Gaz à effet de serre
En savoir plus
Classe énergie et classe climat
Connexion internet
| | Cuivre DSL de 0,5 à 3 Mbit/s
Fibre optique plus de 1 Gbit/s
|
Données en provenance de l'Arcep
Montant estimé des dépenses annuelles d'énergie
Les dépenses d'énergie sont estimées entre 810 € et 1 102 € par an selon l'année de référence 2021.
Estimation de dépenses en fonction du logement et pour une utilisation standard sur 5 usages (chauffage, eau chaude sanitaire, climatisation, éclairage, auxiliaires).
L'agence
REGIE CARRON
REGIE CARRON TRANSACTION
7 rue de la Platière
69001 LYON 1ER ARRONDISSEMENT
Tél : 04.37.26.21.83
Contactez-nous via ce formulaire ou appelez-nous pour visiter ce bien
Ecoles, transports, sorties et commerces sur ST CYR AU MONT D OR (69450)
St Cyr Au Mont D Or est une ville de 5 900 habitants. Côté immobilier, les habitations sont réparties en 64 % de maisons et 36 % d'appartements.
En savoir plus sur St Cyr Au Mont D Or


Régie Carron
















