APPARTEMENT T3 A VENDRE - LYON 1ER ARRONDISSEMENT - 62 m2 - 260 000 €
Vue sur Lyon - Appartement Canut – Haut des Pentes - Métro Croix-Rousse
Idéal investisseur / Premier achat :
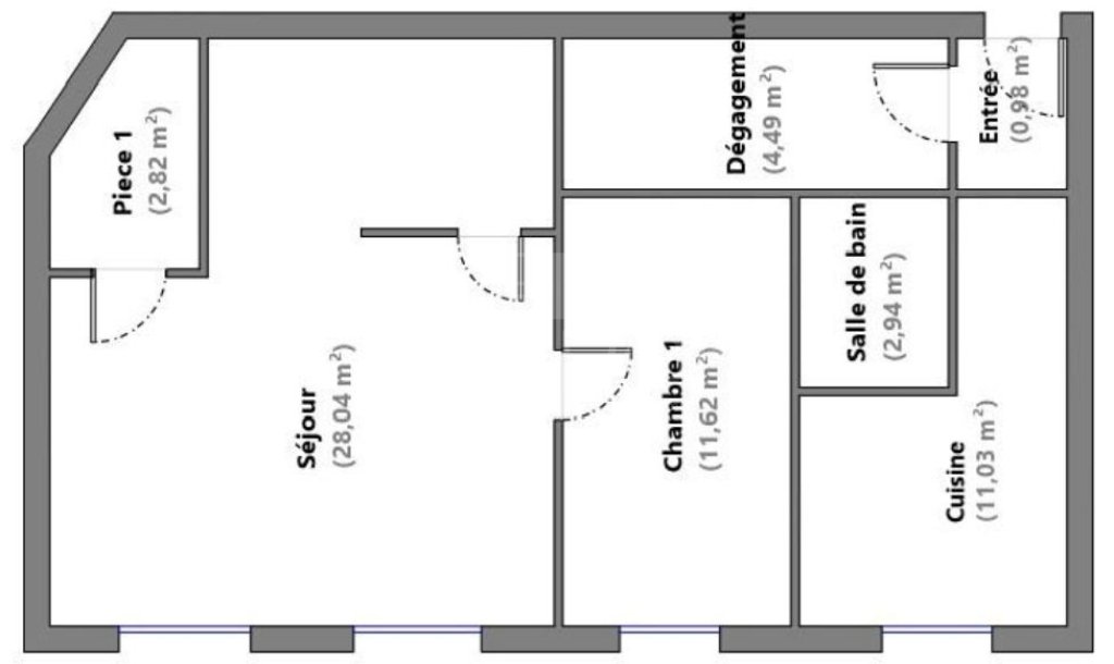
Dans la rue du Bon Pasteur, à proximité immédiate du métro Croix-Rousse, appartement de 62 m² situé dans un immeuble canut avec faibles charges.
L'espace est lumineux et bénéficie d'éléments anciens typiques du quartier. Des travaux de rénovation seront nécessaires pour en optimiser le potentiel.
Le bien est déjà divisé en deux lots au règlement de copropriété, ce qui en fait une option pertinente pour un investisseur ou pour un projet nécessitant deux unités distinctes.
Bien en copropriété.
Nombre de lots : 20 lots d'habitation
Pas de procédure en cours
DPE : Locaux non chauffés - Locaux sans système de chauffage
Charges de copropriétés : 80 €/mois
Fond de réserve loi ALUR : 4 €/mois
Envie d'en savoir plus ?
Contactez Clément SOTTIL (RSAC 813 536 307) Tél O6.15.86.68.52 ou mail : c.sottil@regie-carron.com
Les informations sur les risques auxquels ce bien est exposé sont disponibles sur le site Géorisques : www.georisques.gouv.fr
Les informations sur les risques auxquels ce bien est exposé sont disponibles sur le site Géorisques : www.georisques.gouv.fr
Réf : 2360
Caractéristiques
Aménagements
- surface utile : 82 m2 env.
Copropriété
- soumis au statut de la copropriété : oui
- copropriété : 20 lots
- montant moyen annuel des charges courantes : 960 €/an soit 80 €/mois
- procédure en cours : non
Informations financières
- honoraires à charge : du vendeur
Imprimer la ficheVoir nos prestations et tarifs
L'agence
REGIE CARRON
REGIE CARRON TRANSACTION
7 rue de la Platière
69001 LYON 1ER ARRONDISSEMENT
Tél : 04.37.26.21.83
Contactez-nous via ce formulaire ou appelez-nous pour visiter ce bien
Ecoles, transports, sorties et commerces sur LYON 1ER ARRONDISSEMENT (69001)
Lyon 1er Arrondissement est une ville de 29 016 habitants. Côté immobilier, les habitations sont réparties en 0 % de maisons et 100 % d'appartements.
En savoir plus sur Lyon 1er Arrondissement


Régie Carron









